■須頃小学校区、大島中学校区












須頃小学校 1300m 小学校まで約1300~1400m
大島中学校 2900m 中学校まで約2900~3000m
イオン県央店 1434m
ローソン S済生会新潟県央基幹病院店 665m
ウエルシア燕店 1746m | 販売価格 | 759万円~966.3万円 |
|---|---|
| 価格備考 | |
| 所在地 | 三条市上須頃 |
| 交通 | JR弥彦線 「燕三条」駅 徒歩13~15分 |
| 物件種別 | 土地 |
|---|---|
| 土地面積 | 111.34m2(33.68坪)~150m2(45.37坪) |
| 建築条件 | 無 |
この物件を購入した場合の、月々の返済額の一例です。
元利均等方式 金利5.00%まで ※返済年数5~40年まで入力できます。ボーナスは年2回で計算しています。1000万円まで入力できます。
| 都市計画 | 非線引 |
|---|---|
| 用途地域 | 第1種住居地域 |
| 建ぺい率/容積率 | 60% / 200% |
| 法令上の制限・その他 | |
| 接道状況 | 南東側 6m 一方 公道 |
| 私道面積 | 私道負担無 |
| セットバック | 不要 |
| 現況 | 更地 - |
| 地目 | 宅地 |
| 土地の権利形態 | 所有権 |
|---|---|
| 学区 | 須頃小学校 1300m
大島中学校 2900m |
| 設備 | 都市ガス / 公営水道 / 汚水:個別浄化槽 / 雑排水:浄化槽 () |
| 引渡 | 相談 |
| 取引態様 | 一般 |
| 備考 | ・仲介手数料が発生します。 ・ハーバーハウスの建築条件付き。 - |
| 物件番号 | sa2019030005 |
| 情報変更日 | 2025年11月13日 |
| 次回更新予定日 | 2025年11月25日 |
| 取引有効期限 | 2025年11月27日 |
| 物件参考価格 | 1716万円 |
|---|---|
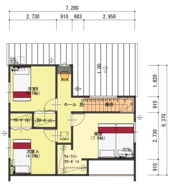
| 間取り | 3LDK |
| 駐車場台数 | 2台 |
| 1階面積 | 約50.51㎡(約15.27坪) |
|---|---|
| 2階面積 | 約37.26㎡(約11.27坪) |
| 延床面積 | 約87.77㎡(約26.55坪) |
※物件価格の他に別途付帯工事費・諸費用が掛かります。
〒950-0084 新潟市中央区明石2丁目3-30 TEL:025-240-3838 FAX:025-278-8200
許可登録 一級建築士事務所 新潟県知事登録(ロ)第5228号 一般建設業許可 国土交通大臣 許可(般-29) 第26981号 日本住宅保証検査機構(JIO)登録業者(財)住宅金融普及協会
※上記建物プランは一例であり、お客様自身で自由にプランを決定できます。