■燕西小学校区、燕中学校区♪
■小学校が近く、国道までもアクセス良好♪
| 販売価格 |
413万円(旧価格2021年5月23日公表)
▶
280万円(新価格2025年12月25日値下げ)
|
|---|---|
| 所在地 | 新潟県燕市白山町2丁目6番18隣地 |
| 交通 | JR弥彦線 「燕」駅 徒歩7分 |
| 物件種別 | 土地 |
|---|---|
| 土地面積 | 151.70m2(45.88坪) |
| 建築条件 | 無 |
この物件を購入した場合の、月々の返済額の一例です。
元利均等方式 金利5.00%まで ※返済年数5~40年まで入力できます。ボーナスは年2回で計算しています。1000万円まで入力できます。
| 都市計画 | 非線引 |
|---|---|
| 用途地域 | 第1種住居地域 |
| 建ぺい率/容積率 | 60% / 200% |
| 法令上の制限・その他 | 法22条指定区域、景観計画区域、道路斜線制限、隣地斜線制限、日影制限 |
| 接道状況 | 西側 3.5m 一方 公道 接面:8.5m |
| 私道面積 | 私道負担無 |
| セットバック | 要 2.5m2 |
| 現況 | 更地 - |
| 地目 | 宅地 |
| 土地の権利形態 | 所有権 |
|---|---|
| 学区 | 燕西小学校 800m 徒歩約10分
燕中学校 2300m 徒歩約29分 |
| 設備 | 都市ガス / 公営水道 / 汚水:公共下水 / 雑排水:公共下水 () |
| 引渡 | 即時 |
| 取引態様 | 一般 |
| 備考 | ※水道管:銅管のため交換必要な場合あり(買主負担) - |
| 物件番号 | ts2021050003 |
| 情報変更日 | 2026年2月4日 |
| 次回更新予定日 | 2026年3月12日 |
富永 敦也

| 物件参考価格 | 1778万円 |
|---|---|
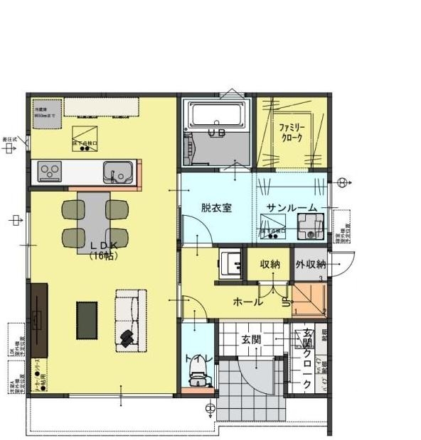
| 間取り | 3LDK |
| 駐車場台数 | 2台 |
| 1階面積 | 約51.48㎡(約15.57坪) |
|---|---|
| 2階面積 | 約39.13㎡(約11.83坪) |
| 延床面積 | 約90.61㎡(約27.4坪) |
※物件価格の他に別途付帯工事費・諸費用が掛かります。
〒950-0084 新潟市中央区明石2丁目3-30 TEL:025-240-3838 FAX:025-278-8200
許可登録 一級建築士事務所 新潟県知事登録(ロ)第5228号 一般建設業許可 国土交通大臣 許可(般-29) 第26981号 日本住宅保証検査機構(JIO)登録業者(財)住宅金融普及協会
※上記建物プランは一例であり、お客様自身で自由にプランを決定できます。