■中学校まで約850mで通学も安心♪
■イオン亀田店1100mアピタパワー1500m♪
■全8区画の分譲地が登場!









新潟市立早通小学校 1116m 新潟市立早通小学校まで約1116m~1146m
新潟市立亀田西中学校 842m 新潟市立亀田西中学校まで約842m~872m
イオン亀田店 1117m イオン亀田店まで約1117m~1147m
セブン-イレブン 新潟元町店 839m セブン-イレブン 新潟元町店まで約839m~869m
ウエルシア亀田店 (調剤薬局) 1038m ウエルシア亀田店 (調剤薬局)まで約1038m~1068m| 販売価格 | 999万円~1,160万円 |
|---|---|
| 価格備考 | |
| 所在地 | 新潟市江南区荻曽根5丁目 |
| 交通 | JR信越本線 「亀田」駅 徒歩27~28分
「泥潟」停歩5~6分 |
| 物件種別 | 土地 |
|---|---|
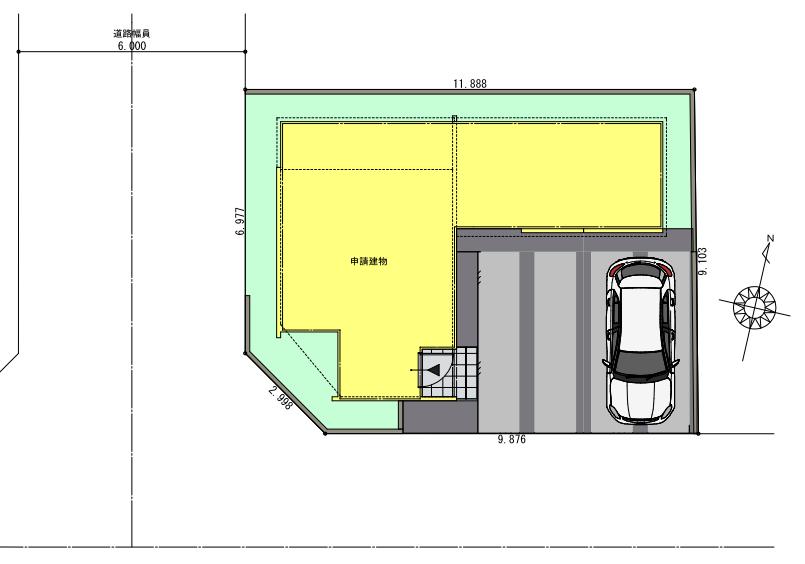
| 土地面積 | 106.42m2(32.19坪)~131.52m2(39.78坪) 公簿(登記) |
| 建築条件 | 有 |
この物件を購入した場合の、月々の返済額の一例です。
元利均等方式 金利5.00%まで ※返済年数5~40年まで入力できます。ボーナスは年2回で計算しています。1000万円まで入力できます。
| 都市計画 | 市街化 |
|---|---|
| 用途地域 | 第1種中高層住居専用地域 |
| 建ぺい率/容積率 | 60% / 200% |
| 法令上の制限・その他 | 日影制限有 ・建築基準法22区域 ・道路斜線制限 ・隣地斜線制限 |
| 接道状況 | 6m 一方 私道、南側 5.6m 一方 公道 |
| 私道面積 | 私道負担有 245.92m2 持分:1/8 |
| セットバック | |
| 現況 | 更地 - |
| 地目 | 宅地 |
| 土地の権利形態 | 所有権 |
|---|---|
| 学区 | 早通小学校 1100m
亀田西中学校 850m |
| 設備 | 都市ガス / 公営水道 / 汚水:公共下水 / 雑排水:公共下水 / 電気:あり () |
| 引渡 | 相談 |
| 取引態様 | 一般 |
| 備考 | 【その他】 ・ハーバーハウスの建築条件付き。 ・仲介手数料が発生致します。 ・開発許可番号:1077号の2 |
| 物件番号 | ko2023060005 |
| 情報変更日 | 2025年11月13日 |
| 次回更新予定日 | 2025年11月20日 |
| 取引有効期限 | 2025年11月27日 |
| 物件参考価格 | 1950万円 |
|---|---|
| 間取り | 3LDK |
| 駐車場台数 | 2台 |
| 1階面積 | 約44.71㎡(約13.52坪) |
|---|---|
| 2階面積 | 約37.26㎡(約11.27坪) |
| 延床面積 | 約81.97㎡(約24.79坪) |
「建物参考価格」は以下のものをすべて含んだ【コミコミ価格】です! 本体工事費 土工・基礎工事 ・木工事・屋根・板金工事・タイル工事・外壁工事・左官工事・建具工事・内装工事・塗装工事・雑工事・電気設備工事・給排水衛生設備工事 ・全室照明器具 付帯工事費 敷地調査・地盤調査・地盤改良工事・仮設工事・外構工事・屋外電気工事・屋外給排水工事 諸経費その他 設計費・現場管理費・諸経費(工事保険、営業経費など) 標準設備 システムキッチン・IHクッキングヒーター・システムバス・洗面化粧台・エコキュート・玄関ドア・玄関収納・全室建具・全室照明 ※LED・各室収納・暖房便座ウォシュレットトイレ・2階暖房便座ウォシュレットトイレ・断熱材・断熱サッシetc 標準仕様 次世代省エネルギー基準適合・オール電化仕様・高気密・高断熱仕様・換気計画・高耐震、高耐久仕様・耐雪対策・結露、カビ、ダニ対策・シックハウス対策・シロアリ対策・防火対策etc
| 物件参考価格 | 2083万円 |
|---|---|
| 間取り | 3LDK |
| 駐車場台数 | 2台 |
| 1階面積 | 約44.02㎡(約13.31坪) |
|---|---|
| 2階面積 | 約40.43㎡(約12.23坪) |
| 延床面積 | 約84.45㎡(約25.54坪) |
「建物参考価格」は以下のものをすべて含んだ【コミコミ価格】です! 本体工事費 土工・基礎工事 ・木工事・屋根・板金工事・タイル工事・外壁工事・左官工事・建具工事・内装工事・塗装工事・雑工事・電気設備工事・給排水衛生設備工事 ・全室照明器具 付帯工事費 敷地調査・地盤調査・地盤改良工事・仮設工事・外構工事・屋外電気工事・屋外給排水工事 諸経費その他 設計費・現場管理費・諸経費(工事保険、営業経費など) 標準設備 システムキッチン・IHクッキングヒーター・システムバス・洗面化粧台・エコキュート・玄関ドア・玄関収納・全室建具・全室照明 ※LED・各室収納・暖房便座ウォシュレットトイレ・2階暖房便座ウォシュレットトイレ・断熱材・断熱サッシetc 標準仕様 次世代省エネルギー基準適合・オール電化仕様・高気密・高断熱仕様・換気計画・高耐震、高耐久仕様・耐雪対策・結露、カビ、ダニ対策・シックハウス対策・シロアリ対策・防火対策etc
〒950-0084 新潟市中央区明石2丁目3-30 TEL:025-240-3838 FAX:025-278-8200
許可登録 一級建築士事務所 新潟県知事登録(ロ)第5228号 一般建設業許可 国土交通大臣 許可(般-29) 第26981号 日本住宅保証検査機構(JIO)登録業者(財)住宅金融普及協会
※上記建物プランは一例であり、お客様自身で自由にプランを決定できます。