■住宅が主体の閑静な地域♪
■73坪の広々としたスペース♪
■整形地なので、ご希望の住宅プランを実現しやすい♪






新潟市立松浜小学校 811m
新潟市立松浜中学校 850m
キューピット 松浜店 1627m
ウオロク 松浜店 1921m
セブン-イレブン 新潟松浜6丁目店 608m
ウエルシア新潟太夫浜店 2281m | 販売価格 |
460万円
|
|---|---|
| 所在地 | 新潟市北区松浜みなと |
| 交通 | JR白新線 「新崎」駅 徒歩67分
「松浜中学前」停歩9分 |
| 物件種別 | 土地 |
|---|---|
| 土地面積 | 243.62m2(73.69坪) 公簿(登記) |
| 建築条件 | 無 |
この物件を購入した場合の、月々の返済額の一例です。
元利均等方式 金利5.00%まで ※返済年数5~40年まで入力できます。ボーナスは年2回で計算しています。1000万円まで入力できます。
| 都市計画 | 市街化 |
|---|---|
| 用途地域 | 第1種住居地域 |
| 建ぺい率/容積率 | 60% / 200% |
| 法令上の制限・その他 | ・法22条指定区域 ・道路斜線制限 ・隣地斜線制限 ・日影規制 |
| 接道状況 | 南側 6.1m 一方 公道 接面:12.5m |
| 私道面積 | 私道負担無 |
| セットバック | 不要 |
| 現況 | 古家有更地渡し - |
| 地目 | 宅地 |
| 土地の権利形態 | 所有権 |
|---|---|
| 学区 | 松浜小学校 800m
松浜中学校 850m |
| 設備 | 都市ガス / 公営水道 / 汚水:公共下水 / 電気:あり () |
| 引渡 | 相談 |
| 取引態様 | 専任媒介 |
| 備考 | ・確定測量後、建物解体後のお引き渡しとなります。 ・奥行と間口は地図より計測したものになりますので、実際の計測値と異なる場合がございます。 - |
| 物件番号 | ki2024070002 |
| 情報変更日 | 2025年11月18日 |
| 次回更新予定日 | 2025年11月26日 |
菊地 平佑

| 物件参考価格 | 1547万円 |
|---|---|
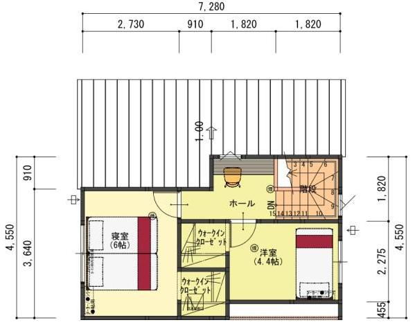
| 間取り | 2LDK |
| 駐車場台数 | 2台 |
| 1階面積 | 約39.74㎡(約12.02坪) |
|---|---|
| 2階面積 | 約28.15㎡(約8.51坪) |
| 延床面積 | 約67.89㎡(約20.53坪) |
※物件価格の他に別途付帯工事費・諸費用が掛かります。
〒950-0084 新潟市中央区明石2丁目3-30 TEL:025-240-3838 FAX:025-278-8200
許可登録 一級建築士事務所 新潟県知事登録(ロ)第5228号 一般建設業許可 国土交通大臣 許可(般-29) 第26981号 日本住宅保証検査機構(JIO)登録業者(財)住宅金融普及協会
※上記建物プランは一例であり、お客様自身で自由にプランを決定できます。